MIXED USE

Central Area Development

Seattle, Washington

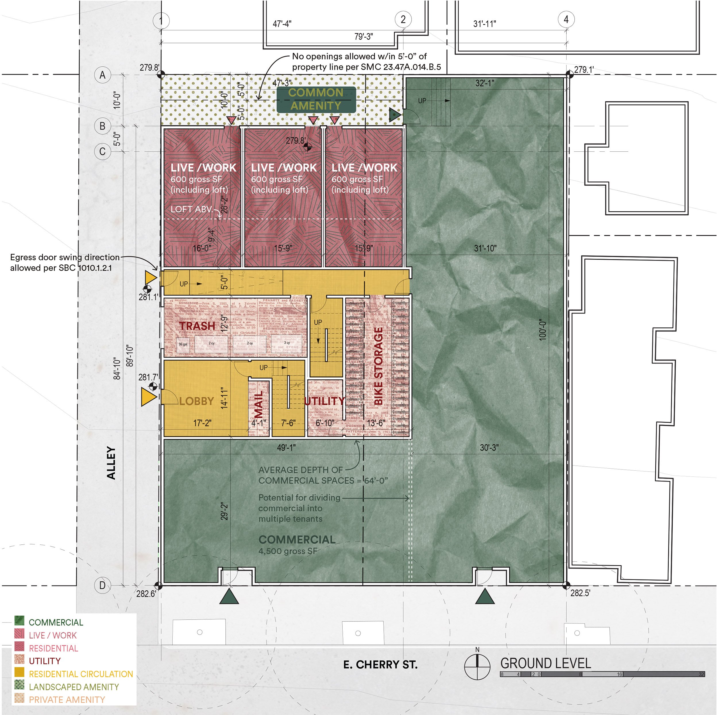
The Central Area Development is located in Seattle’s Central Area neighborhood. This four-storey, mixed-use, new construction building will comprise 35 residential units, and retail and/or restaurant programs at the street level. A courtyard brings light into the interior of the square shaped structure, and provides a protected, semi-private sanctuary for residents.

All images by BUILD LLC

10x


increase in density

36


residential units

Want to know more?

Previous
Previous

First Central Station Master Plan

Next
Next

Beaux Arts Village