AFFORDABLE HOUSING

Sisters Woodlands Habitat Cottages

Sisters, Oregon

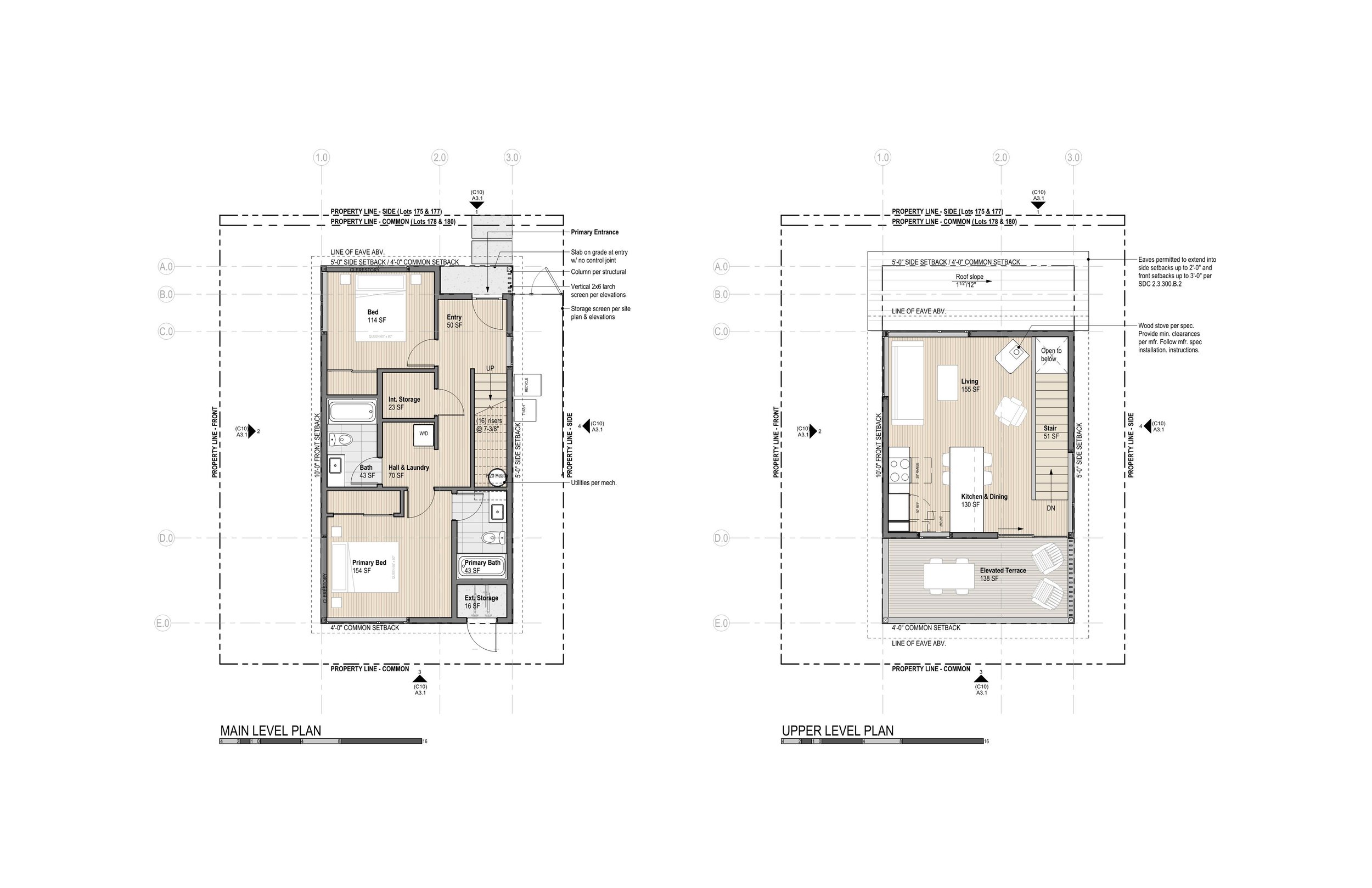
Located within the Sisters Woodlands development, these six two-bedroom cottage homes for Sisters Habitat for Humanity offer an alternative model to help navigate the financial constraints of detached affordable housing. Following an extensive exploration of various housing models for a large site within the Woodlands development, which studied multi-unit apartments, condos, congregate housing and row houses, the project team determined that cottage housing was the most appropriate fit for the surrounding context. All of the cottages forgo individual garages to reduce the footprint, increasing the density, reducing construction costs and promoting walkability within the neighborhood. Shared parking is located on the north end of the new development, with two common open space tracts.

Two distinct plan layouts and three exterior envelope schemes provide variety and maintain privacy between homes. These new homes will have the same exterior materials to integrate into the existing cottage development. The traditional plan with ground floor living spaces includes a bedroom and full bathroom on the ground level for a more accessible layout. A reverse floor plan incorporates generous interior storage and an elevated terrace. These layouts are thoughtfully arranged on site to maintain privacy between cottages and the common landscaped areas.

All images by BUILD LLC

10x


increase in density

6


affordable homes

“By intentionally listening, by focusing on details and understanding the complexities of a project, by applying their innovative vision and talents, BUILD creates an experience, an ambiance, and a lifestyle for residents.  BUILD’s client interactions, unique talents, and professional commitment ensure an optimal design.”

— Peter Hoover, Executive Director of Sisters Habitat for Humanity

Want to know more?

Previous
Previous

Juniper Flats

Next
Next

King Street Apartments