PLANNING

Larch Commons

Sisters, Oregon

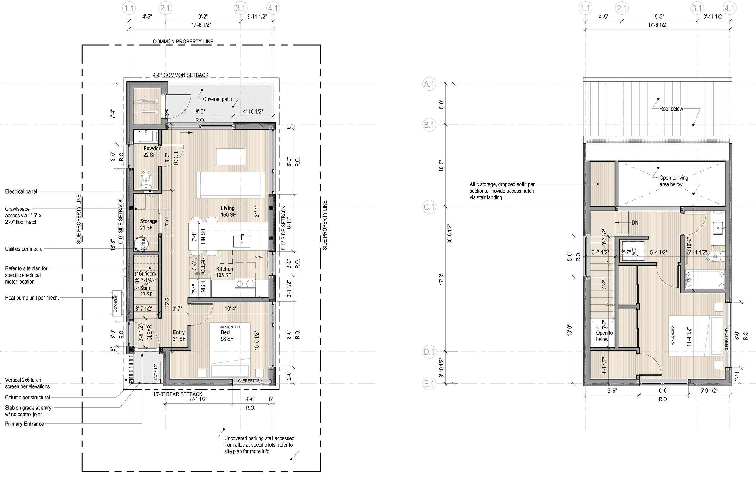
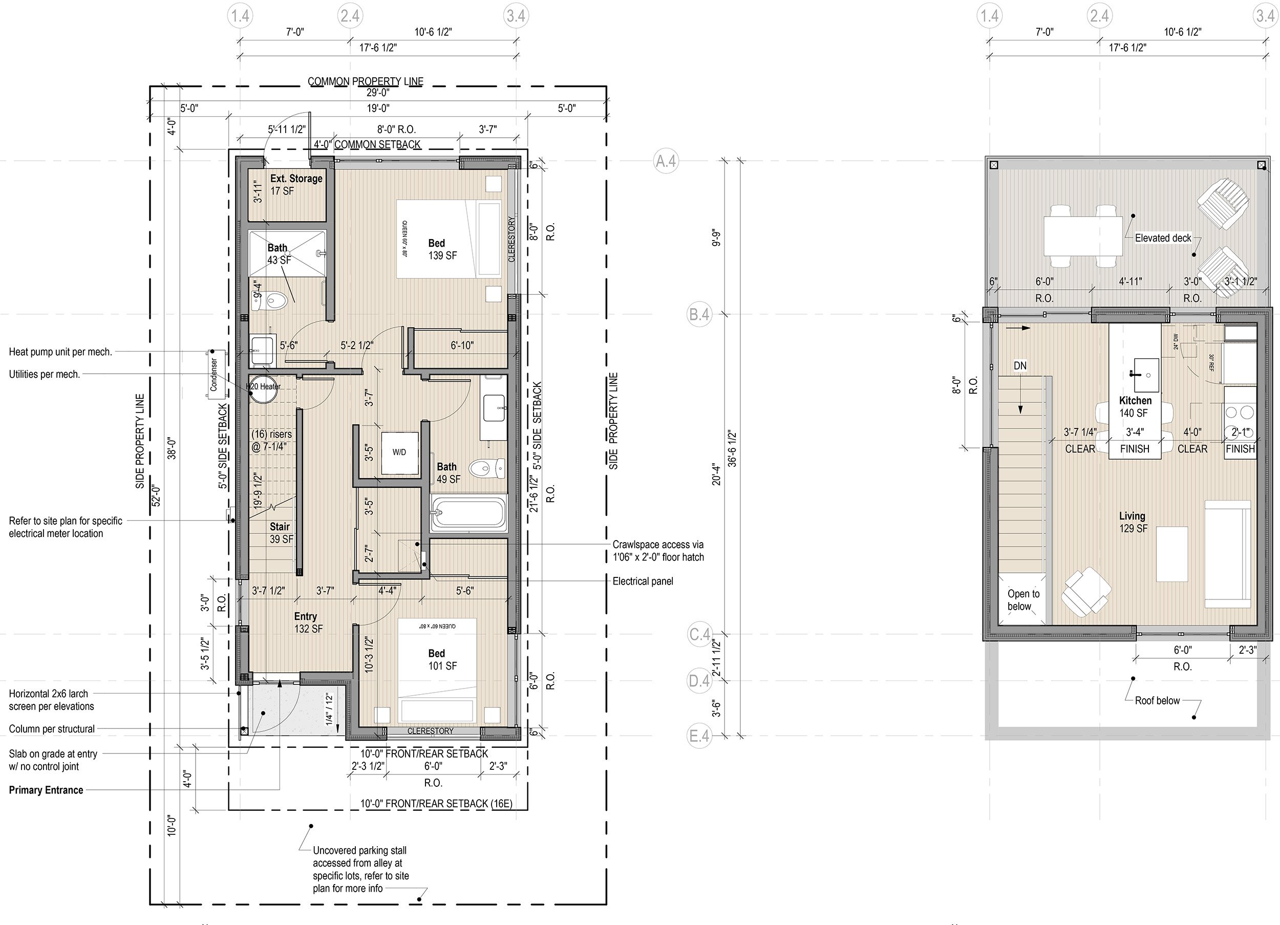
Located in the heart of Sisters, Oregon, this project introduces 26 new cottages and townhomes across two distinct sites within the Downtown Commercial District. The team leveraged the Cottage Development Code and utilized density bonuses for affordability to effectively quadruple the number of standalone homes—an impactful strategy to address the growing need for affordable housing in Central Oregon. The development offers a mix of one-, two-, and three-bedroom homes with a variety of thoughtfully designed floor plans, private outdoor areas, and shared open spaces enhanced by native landscaping.

Twelve unique cottage and townhome designs—each named after lumber terms in tribute to the town’s heritage—maximize compact yet efficient footprints within the downtown core. Rather than individual garages, the plan features shared carports and storage facilities to foster a sense of community. The cottages are clad in fire- and pest-resistant wood siding with metal roofs, offering both wildfire resilience and a material palette that recalls the region’s frontier-era architecture. The townhomes feature deep green corrugated siding paired with warm wood porches, reinforcing a cohesive, earth-toned aesthetic throughout the development.

In BUILD’s ongoing collaboration with Sisters Habitat for Humanity, the team was tasked with expanding SHH’s mission and production capacity at Larch Commons, significantly increasing the number of homes available through SHH’s subsidized land lease program. Beyond architectural design and permitting, BUILD’s expanded project management role included land use approvals, compliance with firewise landscape design standards, infrastructure coordination and approval, new underground electrical service distribution across two city blocks, and construction administration for all vertical development.

All images by BUILD LLC

4x


increase in density

26


residential units

“Sisters Habitat for Humanity and Build LLC have successfully worked together for over three years.  Professional, ethical, dedicated, committed, and thorough are the characteristics that are embodied in the philosophy of Build LLC and its talented staff.  Their active listening, creative designs, and attention to detail ensure the neighborhoods Sisters Habitat builds will be assets to both residents and the community.”

-Peter Hoover, Executive Director, Sisters Habitat for Humanity

Want to know more?

Previous
Previous

Lot-75 Master Plan

Next
Next

Park View