PLANNING

Park View

Sisters, Oregon

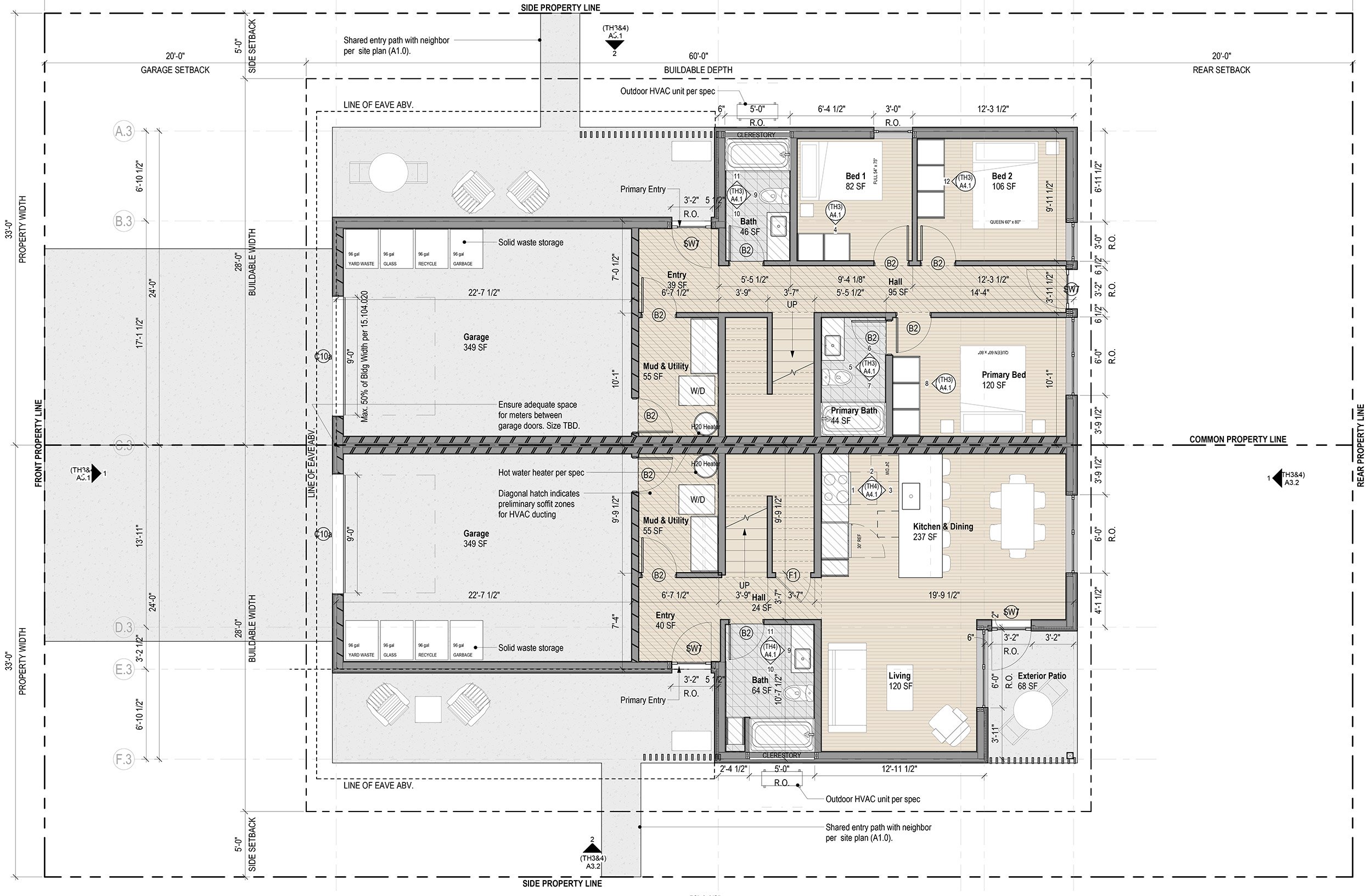
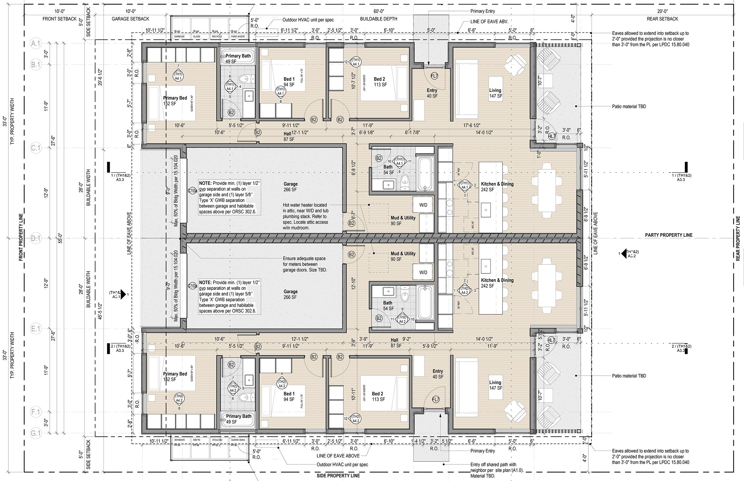
As part of Sunriver La Pine Habitat’s efforts to expand its housing production, this five-acre site introduces 34 affordable townhomes. The project features a mix of one- and two-story, three-bedroom homes, striking a thoughtful balance between variety and efficiency. A limited number of unit types creates visual interest and individuality while minimizing design and construction complexity. Homes range from 1,525 to 1,725 square feet and include a one-car garage.

The native alpine landscape design is fire-wise, pollinator-friendly, and encourages community interaction through shared pathways—while preserving privacy through strategic plant selection and placement. Due to the site’s relatively remote location, the townhomes incorporate an innovative no-concrete slab-on-grade system that lowers both construction costs and embodied carbon. Pre-insulated SIPs wall and roof panels, combined with a tightly sealed building envelope, help reduce long-term energy use. All systems are designed to minimize maintenance and operating costs. In collaboration with SLPH’s construction team, the project is expected to achieve monthly energy consumption at less than one-fifth that of the average home in the area.

All images by BUILD LLC

2x


increase in density

34


residential units

“Partnering with BUILD, LLC to bring the vision, design, and project management of our Park View neighborhood to life was essential in launching this transformative development, which will ultimately provide safe, affordable homes for 34 families.”

-Kim Gammond, Executive Director, Habitat for Humanity of La Pine Sunriver

Want to know more?

Previous
Previous

Larch Commons

Next
Next

The Orchard Master Plan